€ 580.000
Imola Tre Monti, villa indipendente con parco

Rif: IMMO-123416143
  • 48 Foto
  • 1 Planimetrie

Descrizione

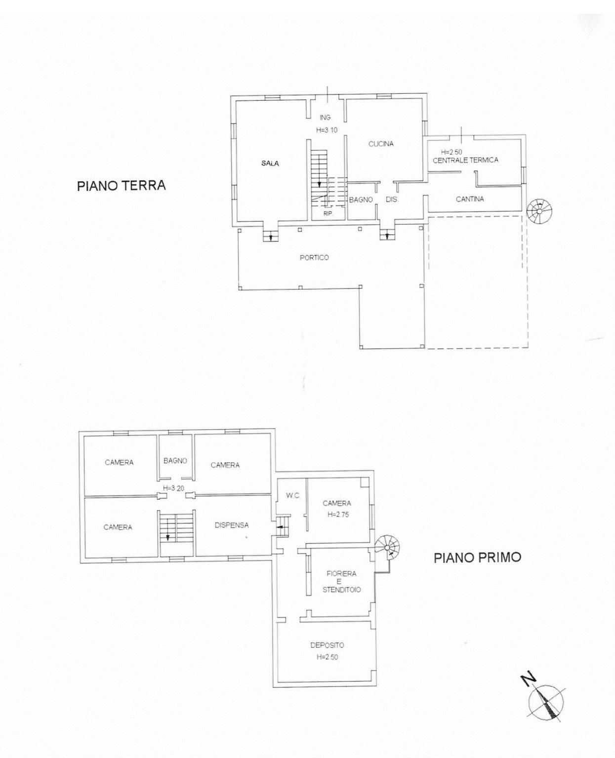
Via Bergullo, a 2 km. dalla Via dei Colli, nella tranquillita' della nostra prima collina, in posizione panoramica, proponiamo bella villa indipendente in pietra-vista immersa nel verde di un bellissimo parco alberato di mq. 3.600 . Viale d'ingresso alberato dalla cancellata principale automatica. La villa si dispone su due livelli ed e' dotata di due ingressi indipendenti. Al piano terreno: ingresso, accogliente salone con accesso diretto al patio di mq. 60 , a seguire l' ampia cucina con bagno, la zona centrale termica e la cantina. Da una bella scala in cotto si accede al piano primo composto di 4 ampie camere ed un bagno. Completa la proprieta' una dependance con ingresso indipendente, collegata alla villa e composta di 2 camere matrimoniali piu' bagno. Ottime finiture, doppi veri, condizionamento, impianto solare termico, termo autonomo. Due autorimesse di mq. 26 cadauna. Se stai cercando una abitazione che unisce il fascino della natura alla comodita' degli spazi, questa e' la perfetta opportunita'. Classe energetica in elaborazione. Eu.. 580.000 trattabili. Intercasa Immobiliare P.zza Gramsci 15 Imola 05421880837 referente Emanuela 3355263810

Richiedi maggiori informazioni

Autorizzazione al trattamento dei dati personali+
Dichiaro di aver letto l'informativa sulla privacy ed accetto le condizioni d'utilizzo del servizio.
Riempi il campo con il codice riportato nell'immagine*
Codice Captcha

Dettaglio immobile

Contratto Vendita
Rif IMMO-123416143
Prezzo € 580.000
Provincia Bologna
Comune Imola
Superficie 296 mq
Vani 7
Camere 6
Bagni 3
Classe energetica Non indicata
Riscaldamento autonomo
Condizioni ottime condizioni
Anno di costruzione 1995
Arredato si
Ascensore no
Garage 52 mq
Cantina si
Parcheggio si
Giardino 3.600 Mq
Cucina abitabile
Terrazza si

Consistenze

Descrizione Superficie Sup. comm.
Principali
Immobile - piano terra 88 Mq 88 Mqc
Immobile - 1° piano 88 Mq 88 Mqc
Immobile - 1° piano 58 Mq 58 Mqc
Box/Garage - piano terra 26 Mq 13 Mqc
Box/Garage - piano terra 26 Mq 13 Mqc
Giardino/Resede 3.600 Mq 0 Mqc
Altro - piano terra 60 Mq 18 Mqc
Totale 278 Mqc

Contattaci

Autorizzazione al trattamento dei dati personali+
Dichiaro di aver letto l'informativa sulla privacy ed accetto le condizioni d'utilizzo del servizio.
Riempi il campo con il codice riportato nell'immagine*
Codice Captcha

Intercasa Immobiliare

Via Roma, 6
40068 SAN LAZZARO DI SAVENA (BO)
C.F.: 04226510370
P.IVA: 04226510370
SAN LAZZARO DI SAVENA REA BO356563 P.IVA 04226510370 C.F.04226510370
+39051347450
Condividi Linkedin Whatsapp Stampa
Stampa